Villa Hermanos

260m²

*The entire interior and exterior design is carried out according to the client’s tastes and wishes. Photos for reference purposes.

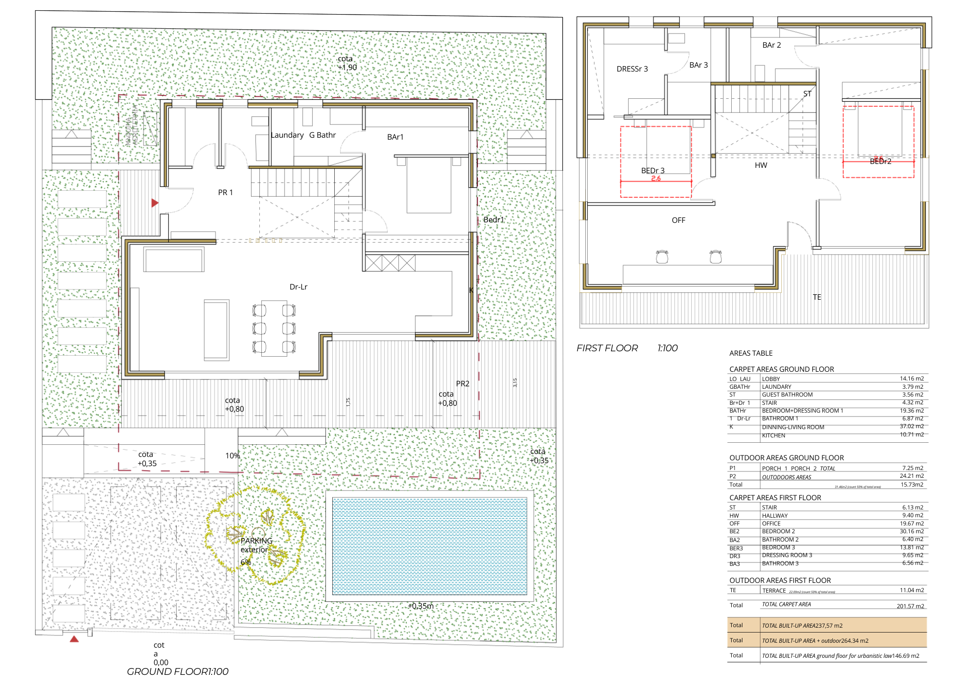
We design and build your ideal eco-friendly home in the prestigious urbanization of Vilassar de Dalt, just 20 minutes from Barcelona, surrounded by nature and 5 minutes from the beaches. Located on an exclusive 430 m² plot with sea views, this home offers luxury, comfort, and sustainability.

Main features:

  • Total area: 260 m²
  • Living-dining room: 37 m²
  • Modern fully equipped kitchen
  • 3 bedrooms with walk-in closets and en-suite bathrooms
  • 1 office/relaxation area
  • Underfloor heating throughout the house
  • High ceilings
  • 2 parking spaces
  • Balcony with sea view
  • Terrace and private pool

Emission class – A

Class of energy efficiency – A

Construction phase:

  • Architectural project: completed
  • Construction license: received
  • Installation of the foundation
  • Delivery date: 2nd quarter of 2026

Location

Price: from 1 470 000 EUR

Contact

Contact